Уфа, Мустая Карима Улица, 28
| Арендная плата (Помесячно) | 90 000 |
|---|---|
| Цена кв.м. в год | 0 |
| Тип коммерческой | Офисное помещение |
| Площадь, кв.м. | 92.9 |
| Этаж | 1 |
| Этажность | 10 |
| Населенный пункт | Уфа |
|---|---|
| Район города | Ленинский |
| Улица | Мустая Карима Улица |
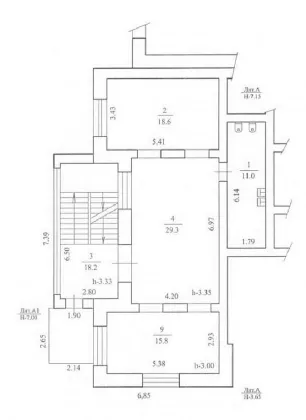
Сдается офисное помещение свободного назначения по адресу: г. Уфа, ул. Мустая Карима, д. 28.
КРАСНАЯ ЛИНИЯ! Общая ВХОДНАЯ ГРУППА.
ХАРАКТЕРИСТИКИ: Помещение расположено на 1 этаже 10 этажного жилого дома, общей площадью 92,9 кв.м, высота потолка 3,5 м. Отдельная входная группа, отличный ремонт: потолок армстронг, пол плитка, стены окрашены, имеется охранно-пожарная сигнализация, санузел.
МЕСТОПОЛОЖЕНИЕ: Отличное месторасположение в историческом центре города. Остановка общественного транспорта "Гостиница Башкирия". Развитая инфраструктура: офисы банков «Авангард», «Газпромбанк», бизнес центр. Отличное место для Вашего бизнеса.
УСЛОВИЯ ОПЛАТЫ: Оплата первого и последнего месяца аренды. Коммунальные платежи не включены в стоимость арендной платы. Более подробная информация по телефону – звоните!!!!
Цена 1 эт. - 90 000 руб.
цок. - 76 000 руб.

































