Уфа, Рихарда Зорге Улица, 63/4
| Арендная плата (Помесячно) | 60 000 |
|---|---|
| Цена кв.м. в год | 0 |
| Тип коммерческой | Помещение свободного назначения |
| Площадь, кв.м. | 126 |
| Этаж | 1 |
| Этажность | 20 |
| Населенный пункт | Уфа |
|---|---|
| Район города | Октябрьский |
| Улица | Рихарда Зорге Улица |
Предложение от собственника:
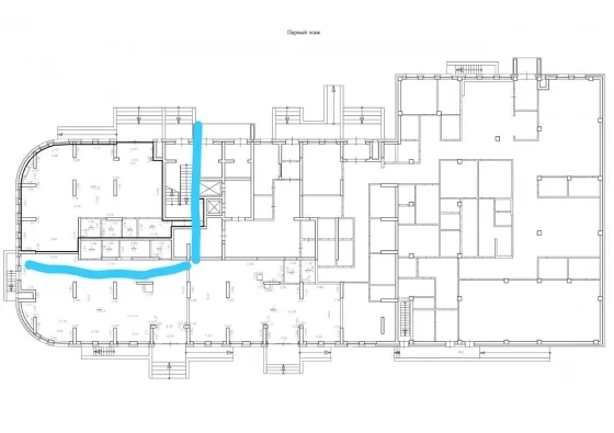
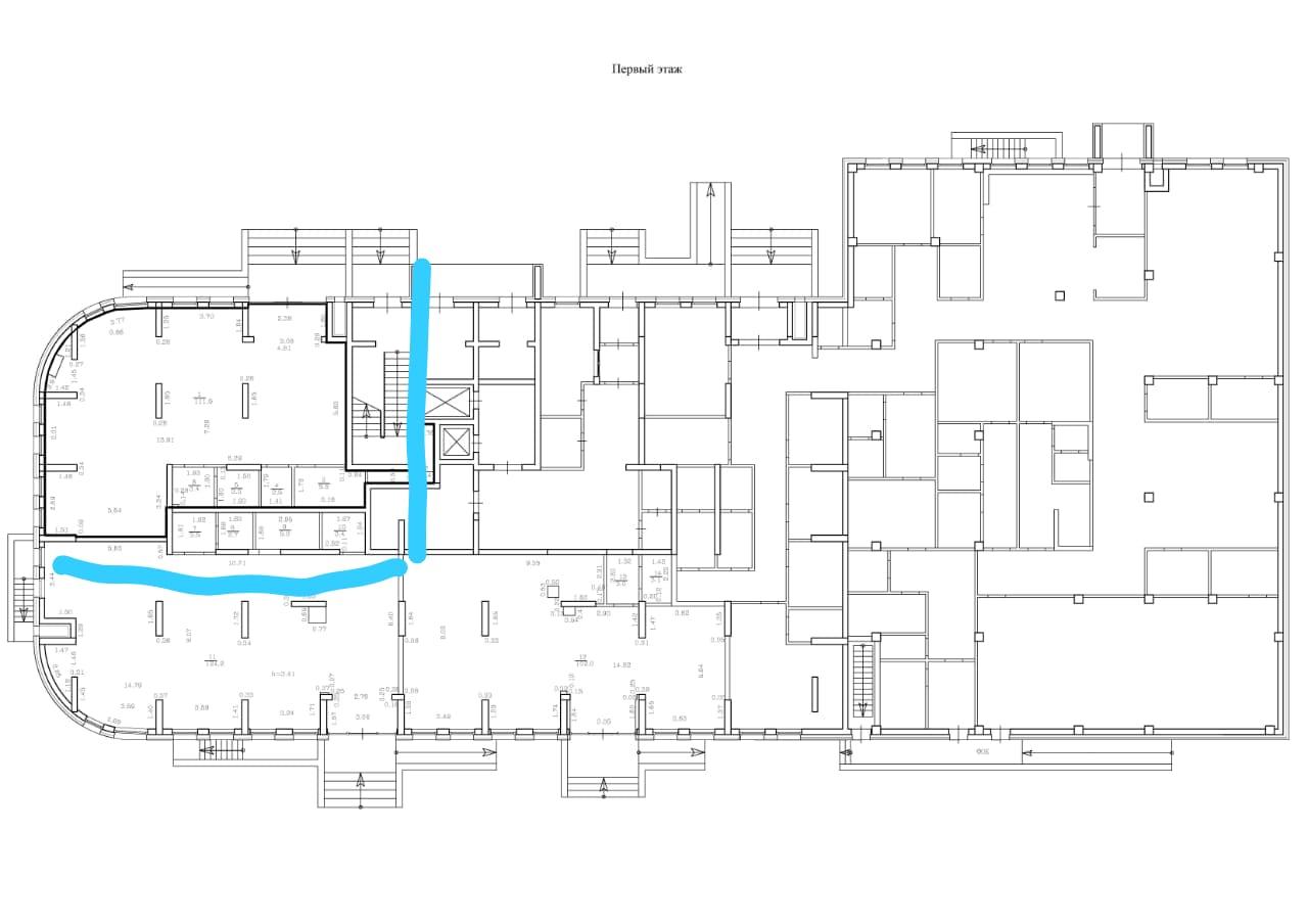
Сдается в аренду помещение по адресу: г.Уфа, ул. Рихарда Зорге, площадью 126 кв.м., первый этаж. Отдельная входная группа.
Характеристика:
Помещение свободной планировки, черновая отделка, ремонт под арендатора. Отопление, электричество. Идеально подойдет под детский центр, офис, студию красоты, магазин. Вокруг огромный жилой массив. Есть место для вывески . Большая парковка.
Расположение:
Развитая инфраструктура. Удобные подъездные пути, всегда имеются места для парковки автомобилей. Рядом открылись магазин Эко фуд, аптека Фармленд.
Условия оплаты:
Оплата первый и последний месяц(депозит).
Предоставляются каникулы.
Показ в удобное для Вас время.
Мы работаем без комиссии для Арендатора.
Звоните!!!



















