Уфа, Транспортная Улица, 44
| Арендная плата (Помесячно) | 292 400 |
|---|---|
| Цена кв.м. в год | 0 |
| Тип коммерческой | Помещение свободного назначения |
| Площадь, кв.м. | 172 |
| Этаж | 1 |
| Этажность | 9 |
| Населенный пункт | Уфа |
|---|---|
| Район города | Калининский |
| Улица | Транспортная Улица |
Предложение от собственника:
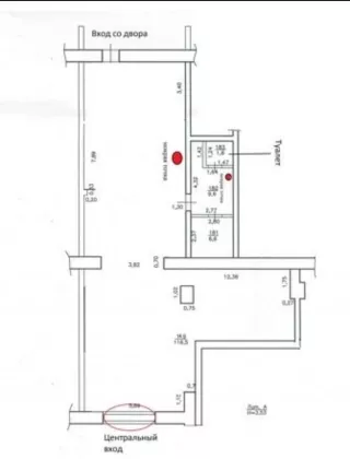
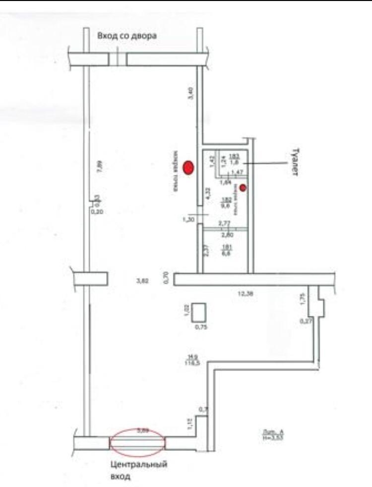
Сдается в аренду помещение на КРАСНОЙ ЛИНИИ, расположенное по адресу: г.Уфа, ул. Транспортная, 44, площадью 172 кв.м., два входа (один вход на красной линии, второй со двора).
Характеристика:
Помещение на КРАСНОЙ ЛИНИИ ,свободного назначения, светлое, теплое. Имеется зона погузки-разгрузки со двора. Отопление, электричество, вытяжка , сигнализация, охрана, видеонаблюдение . Место для размещения Вашей рекламы на фасаде. Парковка.
Расположение:
ПЕРВАЯ ЛИНИЯ, развитая инфраструктура, очень плотный пешеходный и автомобильный трафик. Огромная парковка. Рядом расположены магазины Байрам, Пятерочка, сбербанк, мед техника, детский сад, школы и т.д. Удобные подъездные пути, рядом расположена остановка автотранспорта.
Условия оплаты:
Оплата первый и последний месяц(депозит).
Показ в удобное для Вас время.
Мы работаем без комиссии для Арендатора.
Звоните!!!













