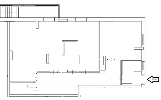
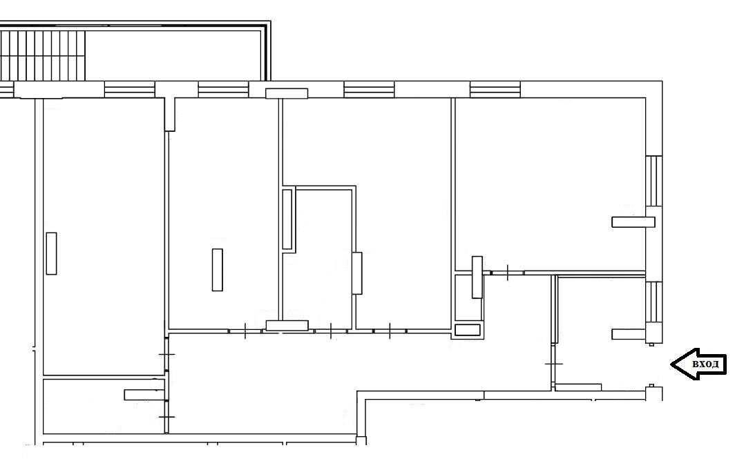
Помещение свободного назначения, 157м2
| Арендная плата (Помесячно) | 78 500 |
|---|---|
| Цена кв.м. в год | 0 |
| Тип коммерческой | Помещение свободного назначения |
| Площадь, кв.м. | 157 |
| Этаж | 1 |
| Этажность | 16 |
| Населенный пункт | Уфа |
|---|---|
| Район города | Октябрьский |
| Улица | Маршала Жукова Улица |
Сдается в аренду торгово-офисное помещение по улице Маршала Жукова 1/2, площадью 157 кв.м - 1 этаж, с РЕМОНТОМ.
Отдельная входная группа. КРАСНАЯ ЛИНИЯ.
ХАРАКТЕРИСТИКИ ПОМЕЩЕНИЯ: Торговое помещение свободной планировки, свой санузел, подсобное помещение. Собственник готов сделать качественный ремонт под Арендатора. Высокие потолки 3.5 метра. Витринные окна.
КОММУНИКАЦИИ: отопление, электричество, водоотведение, водоснабжение, интернет, ОПС.
МЕСТОПОЛОЖЕНИЕ: Красная линия. Фасад здания имеет хорошие рекламные возможности. Высокий пешеходный и автомобильный трафик.
УСЛОВИЯ АРЕНДЫ: Оплата первый и последний месяц. В стоимость арендной платы не включены коммунальные платежи.
Показ в удобное для Вас время.
У нас нет ни каких комиссий для Арендаторов.

























