Офисное помещение, 407 м2
| Арендная плата (Помесячно) | 407 000 |
|---|---|
| Цена кв.м. в год | 0 |
| Коммунальные услуги включены | Да |
| Тип коммерческой | Офисное помещение |
| Площадь, кв.м. | 407 |
| Этаж | 2 |
| Этажность | 4 |
| Населенный пункт | Уфа |
|---|---|
| Район города | Кировский |
| Улица | Менделеева Улица |
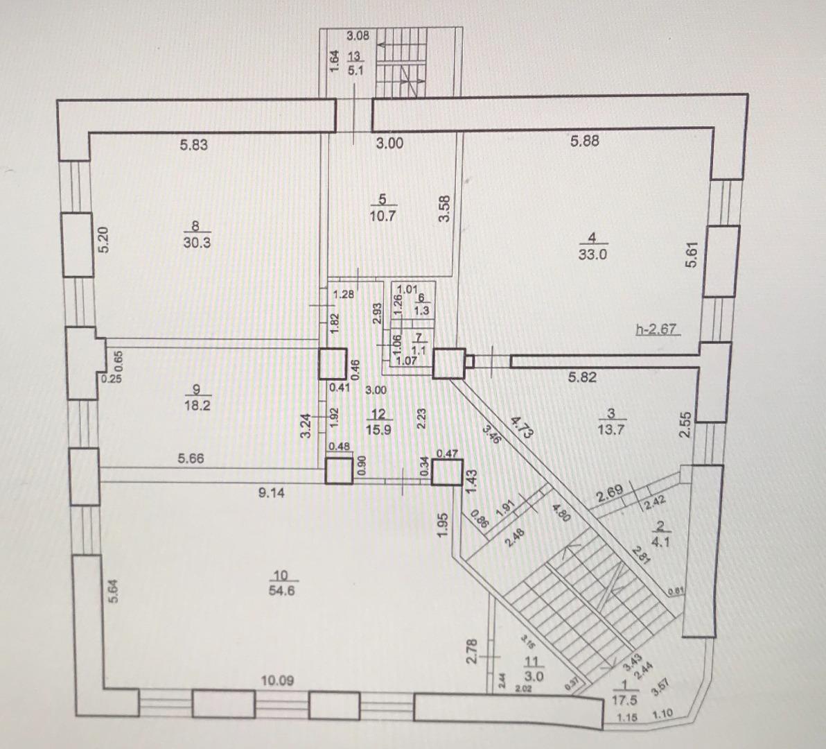
Сдается в аренду офисное помещение на красной линии, на 2 и 3 этаже, отдельно-стоящего 4 - этажного здания, по улице Менделеева 138/1, площадью 407 кв.м. Есть возможность уменьшить площадь аренды.
ХАРАКТЕРИСТИКА: С отличным ремонтом, 6 кабинетов на этаже. Имеется кабинет "Приемной" с кабинетом директора. Потолки 2.7 метра. Видеонаблюдение, пожарная сигнализация, современные системы безопасности. Так же имеется консьерж.
КОММУНИКАЦИИ: Отопление, электричество, водоотведение, водоснабжение. На этаже имеется отдельный туалет.
МЕСТОПОЛОЖЕНИЕ: Красная линия! Развитая инфраструктура. Отличное месторасположение, удобная транспортная доступность, большая парковка. В шаговой доступности остановка общественного транспорта.
УСЛОВИЯ АРЕНДЫ: Оплата первого и последнего месяца аренды. Есть возможность увеличить площадь аренды. В стоимость арендной платы включены коммунальные платежи.
Показ в удобное для Вас время, у нас нет комиссии для Арендаторов.

























