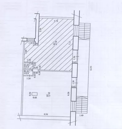
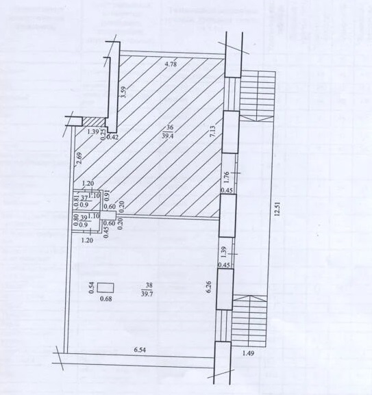
Помещение свободного назначения, 40м2
| Арендная плата (Помесячно) | 40 000 |
|---|---|
| Цена кв.м. в год | 0 |
| Тип коммерческой | Помещение свободного назначения |
| Площадь, кв.м. | 40 |
| Этаж | 1 |
| Этажность | 5 |
| Населенный пункт | Уфа |
|---|---|
| Район города | Орджоникидзевский |
| Улица | Ульяновых Улица |
Сдается в аренду помещение свободного назначения по адресу Ульяновых 52, площадью 42 кв.м.
КРАСНАЯ ЛИНИЯ! ОТДЕЛЬНАЯ ВХОДНАЯ ГРУППА!
ХАРАКТЕРИСТИКА: С хорошим ремонтом. Высота потолков 2.6 м. Отлично подойдет под цветочный магазин или салон красоты. Так же под офис юридических услуг, рядом находится Орджоникидзевский районный суд.
КОММУНИКАЦИИ: Эл. Мощность 7 кВт. Отопление, электричество, водоотведение, водоснабжение, санузел. Имеется охранно-пожарная сигнализация.
МЕСТОПОЛОЖЕНИЕ: Отличный обзор с проезжей части. Хорошие рекламные возможности на фасаде. Развитая инфраструктура, хороший пешеходный трафик.
УСЛОВИЯ АРЕНДЫ: Оплата первого и последнего месяца аренды.
Коммунальные платежи не включены в стоимость арендной платы.
Показ в удобное для Вас время, у нас нет комиссии для арендаторов.













