Уфа, Мечтателей Улица, 8
| Стоимость | 16 000 000 |
|---|---|
| Тип коммерческой | Помещение свободного назначения |
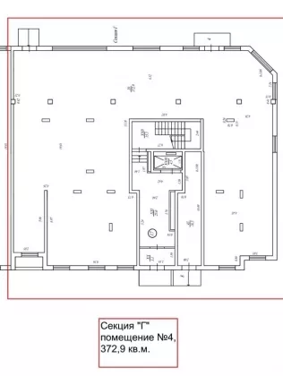
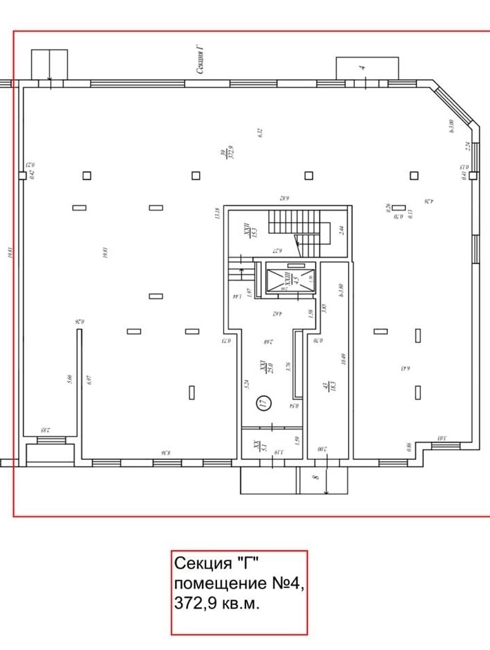
| Площадь, кв.м. | 372.9 |
| Этаж | 1 |
| Этажность | 12 |
| Населенный пункт | Уфа |
|---|---|
| Район города | Дёмский |
| Улица | Мечтателей Улица |
Продажа помещения в самом центре Демы площадью 372,9 кв.м.
ХАРАКТЕРИСТИКА ПОМЕЩЕНИЯ: Располагается на 1 этаже, имеется 2 отдельных входных групп, возможно организация дополнительных входных группы, КРАСНАЯ ЛИНИЯ, высота потолков более 3м., круглосуточный доступ, удобные подъездные пути, имеется парковка.
ОЧЕНЬ ПЕРСПЕКТИВНОЕ МЕСТО ДЛЯ ВЛОЖЕНИЙ!!!
Активно развивающийся микрорайон (дома сданы, 4 дома строятся, в проекте предусмотрено дальнейшее строительство жилых домов). Выигран тендер на строительство и обустройство дорог.
У нас НЕТ никаких КОМИССИЙ для ПОКУПАТЕЛЕЙ !!!
Опыт работы в коммерческой недвижимости более 5 лет!!!
Звоните , подберем совершенно бесплатно объект недвижимости , соответствующий Вашим критериям !!!
ующий Вашим критериям !!!























