Помещение с УДОБНЫМ ВЫЕЗДОМ НА Индустриальное шоссе, Уфимское шоссе.
| Арендная плата (Помесячно) | 710 000 |
|---|---|
| Цена кв.м. в год | 0 |
| Тип коммерческой | Помещение свободного назначения |
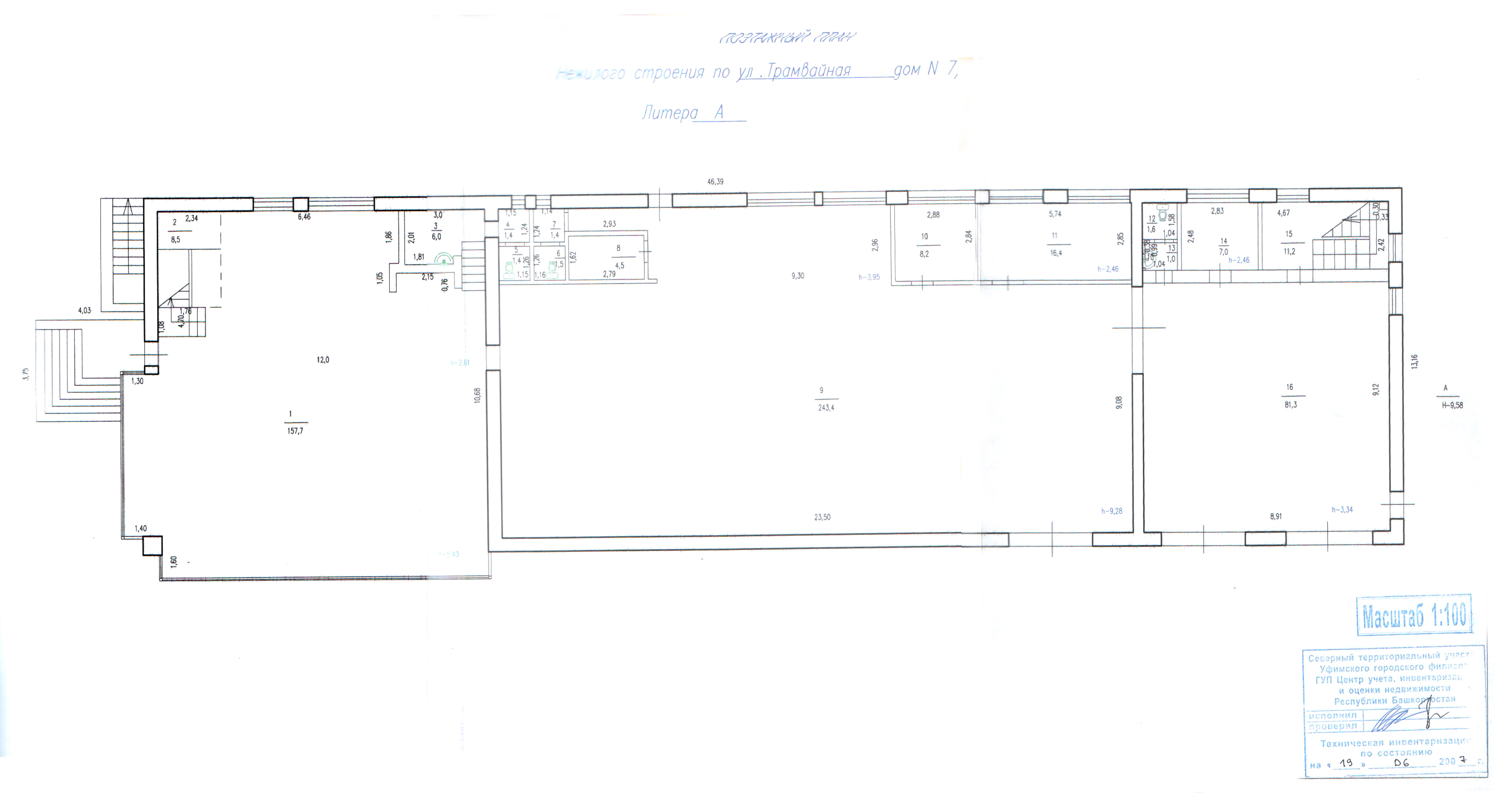
| Площадь, кв.м. | 835.7 |
| Этаж | 1 |
| Этажность | 2 |
| Населенный пункт | Уфа |
|---|---|
| Район города | Калининский |
| Улица | Трамвайная Улица |
АРЕНДА ПОМЕЩЕНИЯ СВОБОДНОГО НАЗНАЧЕНИЯ НА ТРАМВАЙНОЙ
ХАРАКТЕРИСТИКИ:
- Площадь всего здания 835,7м.кв.
- Площадь первого этажа 620м.кв.
- Площадь административно-офисной части второго этажа 216м.кв.
- Состоит из торгового выставочного зала, производственной и складской зоны.
- Высота здания -6м.
- Двое ворот 3*3м.
- Полы –топпинговые, нагрузка 10 тонн/кв.м.
- Витражное остекление.
- Круглосуточный доступ;
- Имеется площадка для парковки и стоянки легкового транспорта;
КОММУНИКАЦИИ:
- Видеонаблюдение.
- Водоснабжение, водоотведение, электроснабжение, теплоснабжение- центральные.
-Два провайдера Уфанет и Ростелеком;
- Серверная.
УСЛОВИЯ ОПЛАТЫ: Стоимость объекта – 849 рублей м.кв. В стоимость арендной платы входит коммунальные платежи. При подписании договора оплачиваются платежи за первый и последний месяцы. Коммунальные платежи (электричество, отопление, водоснабжение и водоотведение) не входят в стоимость арендной платы и оплачиваются отдельно.
Без КОМИССИИ для Арендаторов!!!
Подберем Вам совершенно БЕСПЛАТНО объект недвижимости, соответствующий Вашим критериям!!!
ЗВОНИТЕ!!!































































