Уфа, Полевая Улица, 44
| Арендная плата (Помесячно) | 1 058 400 |
|---|---|
| Цена кв.м. в год | 0 |
| Тип коммерческой | Складское помещение |
| Площадь, кв.м. | 1512 |
| Этаж | 1 |
| Этажность | 1 |
| Населенный пункт | Уфа |
|---|---|
| Улица | Полевая Улица |
Производственно-складское помещение 1512м.кв.
Ввод в эксплуатацию Iквартал 2025г.
ХАРАКТЕРИСТИКИ ПОМЕЩЕНИЯ:
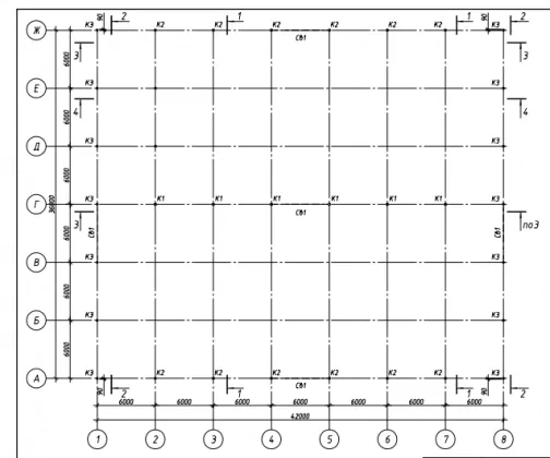
- Теплый склад площадью 1512м.кв. (36м.*42м). Шаг колонн 6м.
- Высота потолков до нижней точки 6 метров. До конька 7м. Односкатная крыша.
- Материал стен - сэндвич панели, толщина 150мм., крыша 200мм.
- Беспылевые полы с нагрузкой на пол 10т.м.кв.
- Большие ворота с нулевым уровнем. Количество ворот по запросу клиента.
- Освещение светодиодное.
- Отопление – своя газовая котельная, Установка воздушного отопления volcano.
- Электрическая мощность – 200кВт.
- Водоснабжение – центральное. Водоотведение – шамбо.
- Бытовка, санузел на территории склада. Офисы по запросу клиента.
- Огороженная, асфальтированная, охраняемая территория.
- Круглосуточный доступ.
На этапе строительства можно произвести корректировки в строительство с учетом вашего ТЗ.
МЕСТОПОЛОЖЕНИЕ: Уфимский район, с.Зубово.
Хорошая транспортная доступность, выезд на М5, М7, Оренбургский тракт.
УСЛОВИЯ АРЕНДЫ: Оплата за первый и последний (депозит) месяц. В стоимость арендной платы не включены коммунальные платежи.
Показ в удобное для Вас время. У нас нет комиссий для Арендаторов. Звоните!















