ПРОДАЖА!!!
Обзор№ - 520
| Стоимость | 24 000 000 |
|---|---|
| Тип коммерческой | Офисное помещение |
| Площадь, кв.м. | 198.5 |
| Этаж | 1 |
| Этажность | 12 |
Адрес
| Населенный пункт | Уфа |
|---|---|
| Район города | Кировский |
| Улица | Рабкоров Улица |
ПРОДАЖА!!!
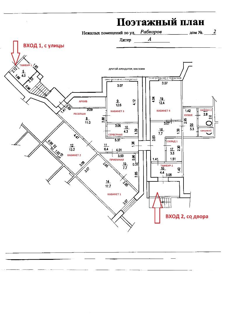
Продажа нежилого помещения по адресу: г. Уфа, ул. Рабкоров.
ХАРАКТЕРИСТИКИ: Площадь 198,5 м2, Высота потолков 2,7 м. Помещение располагается на первом этаже 12 этажного жилого дома, 2 отдельных удобных входа. Планировка кабинетно-коридорная, 3-санузла, 4 кабинета, несколько подсобных помещений, приемная, серверная, кухня.
КОММУНИКАЦИИ: Центральное отопление, электричество, водоотведение, водоснабжение, интернет, охранная и пожарная сигнализации.
Показ в удобное для Вас время.

































