Уфа, Гвардейская Улица, 55а
| Арендная плата (Помесячно) | 505 260 |
|---|---|
| Цена кв.м. в год | 0 |
| Тип коммерческой | Производственное помещение |
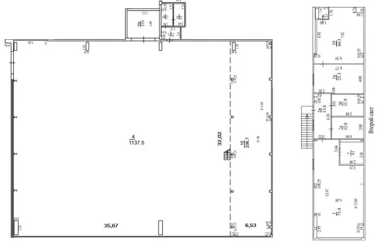
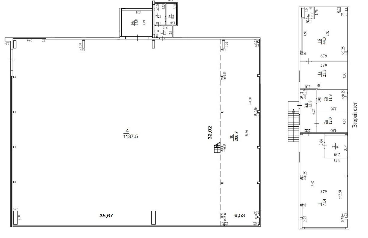
| Площадь, кв.м. | 1604 |
| Этаж | 1 |
| Этажность | 1 |
| Класс здания | B |
| Населенный пункт | Уфа |
|---|---|
| Улица | Гвардейская Улица |
Вренда производственно-складского помещения площадью 1604 кв.м.
* Оборудовано противопожарной сигнализацией, системой пожарного оповещения; спринкерной системой пожаротушения;
* Выделенная электрическая мощность от 1000 кВт и более (возможно увеличение);
* Предлагаемое помещение правильной прямоугольной (практически квадратной) формы: ширина 31,9 м., длина 42,2 м., высота 15,85 м.
+ санузлы и бытовые помещения 1 –го этажа 43,8 кв.м.,
+214 кв.м. площадь административно-бытовых помещений второго этажа (второй свет).
Кран-балка – 5 тонн.
Грузовые ворота в количестве 1 штуки от нулевой отметки.
* Температурный режим соблюдается наличием центрального отопления и отопительных аппаратов Volcano;
* В помещении пол ровный бетонный с антипылевым, топинговым покрытием; нагрузка от 3 т/кв.м.;
* Территория огороженная, освещенная и круглосуточно охраняемая, на территории действует пропускной режим для сотрудников и для а/м с целью погрузки/разгрузки;
* Видеонаблюдение установлено на каждом корпусе и по периметру всего здания, данные передаются на пульт охранного предприятия,
* Ведется учет и контроль доступа сотрудников посредством магнитных пропусков (на каждого сотрудника оформляется магнитный пропуск);
* Имеются площадки для временного отстоя (погрузка/разгрузка) большегрузных автомобилей;
* Имеется бесплатная парковка перед территорией ПромЦентра, стоянка для 200 легковых автомобилей;
* Имеется площадь для маневрирования большегрузных автомобилей (разворота);
* Срок аренды: краткосрочный, долгосрочный.
В стоимость постоянной части арендной ставки 313 рублей за 1 квадратный метр включено отопление (теплоснабжение), вывоз ТБО, охрана. Переменная часть – электропотребление, водоснабжение, водоотведение по счетчикам.
Стоимость постоянной части арендной ставки первого и второго месяца: 156,5 руб/кв.м. с НДС и теплоснабжением.

















