Уфа, Лесотехникума Улица, 49/1
| Арендная плата (Помесячно) | 348 390 |
|---|---|
| Цена кв.м. в год | 0 |
| Тип коммерческой | Складское помещение |
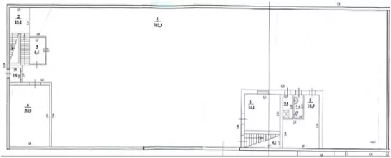
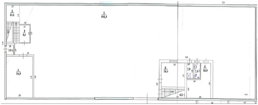
| Площадь, кв.м. | 1161.3 |
| Этаж | 1 |
| Этажность | 2 |
| Населенный пункт | Уфа |
|---|---|
| Район города | Октябрьский |
| Улица | Лесотехникума Улица |
Складское помещение в центре города по адресу г. Уфа, ул. Лесотехникума 49/1 площадью 1161,3 м2
характеристика:
- Общая площадь – 1 161,3 кв.м.;
- Этажность – 2;
- Высота потолка – 6,2 м.;
- Центральная система отопления;
- Центральная система холодного водоснабжения и водоотведения;
- Пожарная сигнализация;
- Ворота, с высотой 5,2 м.;
- Бетонные полы
Преимущество
- Географический центр города, развитая инфраструктура;
- Отдельно стоящее Здание;
- Возможность подъезда и разгрузки большегрузных машин;
- Удобные подъездные пути;
- Транспортная доступность;
- Возможность размещения вывески на фасаде Здания;
УСЛОВИЯ АРЕНДЫ: обсуждается дополнительно Сторонами.
ОКРУЖЕНИЕ: Торговый комплекс Октябрьский, мебельный центр
МебельВилль, ипподром Акбузат.
Показ в удобное для Вас время. У нас нет комиссии для арендаторов.

























