Уфа, 50-летия Октября Улица, 26
Обзор№ - 976
| Арендная плата (Помесячно) | 147 000 |
|---|---|
| Цена кв.м. в год | 0 |
| Тип коммерческой | Торговое помещение |
| Площадь, кв.м. | 147 |
| Этаж | 1 |
| Этажность | 5 |
Адрес
| Населенный пункт | Уфа |
|---|---|
| Улица | 50-летия Октября Улица |
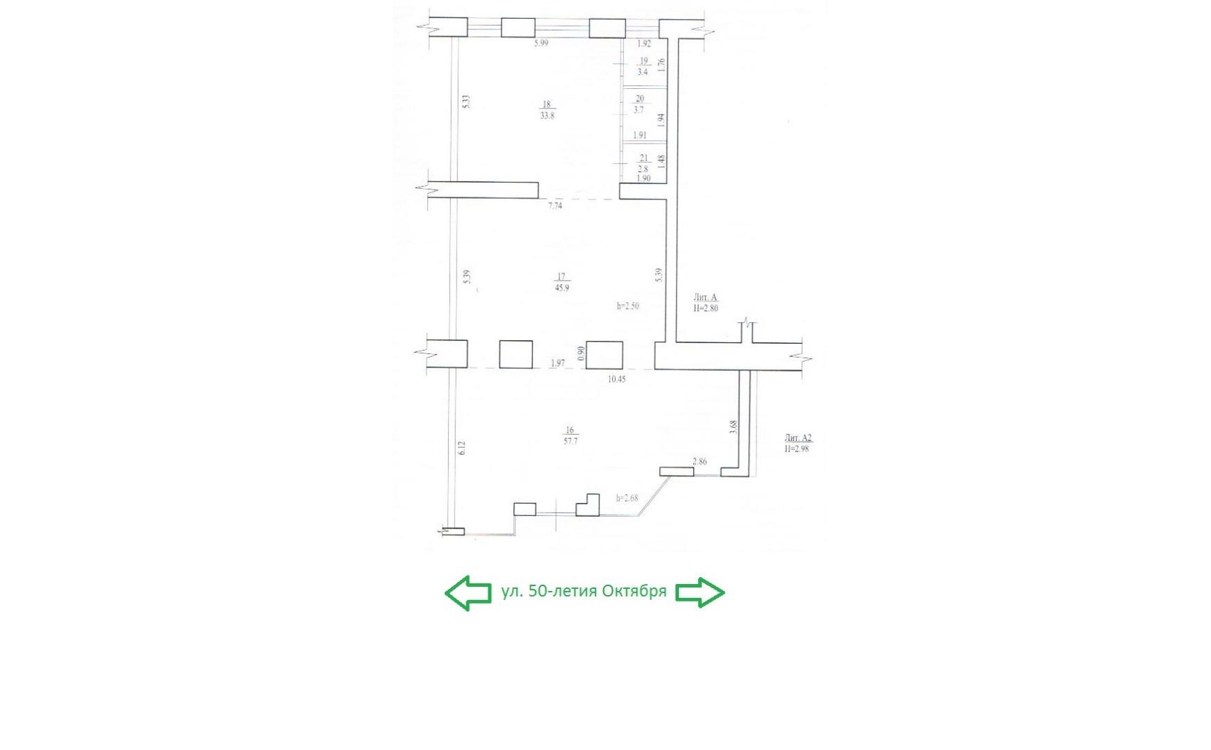
Сдается нежилое помещение с отдельным входом и витражным остеклением на красной линии в районе аграрного университета.
Краткая характеристика помещения:
- Витражное остекление
- Отдельный вход
- Красная линия
- Парковка
- Рекламное место на фасаде
- Чистовая отделка
Идеально под:
- офис,
- магазин,
- выставку,
- представительство





























